Le Pourquoi-pas ?
Construction
De nouveau, le dossier de construction du bateau de Jean-Baptiste Charcot est confié à François Gautier, devenu conseiller technique, qui avait construit le Français en 1903.
Ce nouveau navire doit répondre aux nécessités du travail et de l’hivernage en assurant le maximum de confort.
Aussi, les laboratoires sont disposés d’après les indications de ceux qui doivent y travailler.
Jean-Baptiste Charcot veut élever le pont de la partie centrale du bateau, qui forme ainsi une dunette, afin de donner plus d’amplitude possible aux soutes. Il insiste également pour que l’avant soit particulièrement consolidé.
En conciliant les désirs de Charcot et les contraintes de budget, le Père Gautier trace les lignes d’eau et les plans généraux du navire. Le Pourquoi-pas ?, quatrième du nom, est un trois-mâts barque, car les vergues permettent plus de vitesse dans les vents portants, avec une mâture courte afin de mieux lutter contre les rafales, et dotée d'une machine auxiliaire pour la propulsion. Avec une étrave profilée, il présente une forme surbaissée dont les formes arrondies de la coque doivent permettre de mieux monter sur la glace et la briser sous son poids. C’est un bâtiment, de 445 tonneaux ; de près de 850 tonnes de déplacement ; de 45 mètres de longueur pour 9,20 mètres de largeur ; d’un tirant d’eau dépassant 4,25 mètres en plein charge, conçu tout particulièrement pour la navigation dans les mers polaires.
En septembre 1907, la construction est officiellement lancée. Charcot lui-même et son ami Charles Boyn surveillent les travaux. L’Agence générale maritime, chargée de la maîtrise d’œuvre, commande la machine auxiliaire.
La fabrication et l’installation de la chaudière et du moteur compound à double expansion est suivie par l’ingénieur principal du Génie maritime, Maxime Laubeuf.
Le chantier Gautier ne lésine pas sur la qualité des matériaux. À part les petits fonds en orme, seul le chêne est utilisé dans la construction du bateau.
Les échantillons de bois, les ancres et chaînes sont prévus environ trois fois plus robuste que pour un navire ordinaire. La courte, mais solide mâture est choisie parmi les plus belles pièces de l'arsenal de Brest.
La coque
De tous les côtés, les renforcements supplémentaires sont multiples. Ces dispositifs spéciaux concernent aussi bien la coque, le pont ou la proue.
Pour résister aux chocs et aux étreintes des glaces polaires, les membrures d'une force considérable sont doublées, voire triplées pour certaines, par rapport à une construction classique, réduisant ainsi l’espace (la maille) entre les membrures. Des diagonales d’acier espacées tous les mètres lient les membrures entre elles, et augmentent encore la solidité du navire. Les mailles des membrures sont remplies par des massifs de bois, de même, que pour les petits fonds qui sont calfatés et coaltés avant le coulage du ciment constituant le lest. Un vaigrage intérieur calfaté et coalté également forme pour ainsi dire une coque supplémentaire.
Les barrots d’entrepont et de faux-ponts sont trois fois plus rapprochés, et des croix de Saint-André consolident le pont au droit des étambrais de mâts.
L’avant qui doit supporter les chocs les plus considérables est particulièrement soigné. Tout à fait compact dans son ensemble, il est garni à l’intérieur de puissantes guirlandes, et à l’extérieur par des armatures en fer et d’épaisses tôles zinguées.
En novembre 1907, le navire est monté en bois tors, prêt à recevoir deux bordés très épais recouvrant les membrures, avec soufflage extérieur à partir de la flottaison pour protéger le double bordé contre l’usure des glaces.
Les travaux de charpente se poursuivent pendant tout l’hiver.

Le système de propulsion
Le Pourquoi-pas ? dispose comme son prédécesseur le Français d’une propulsion auxiliaire à vapeur. La salle des machines prévoit d’abriter :
- la chaudière double foyer, d’une longueur de 3,30 mètres et de 3,80 mètres de diamètre, est timbrée à 7 kg /cm2. Sa surface de grille totale est de 5,316 m2,
- le moteur compound. C’est une machine verticale de type pilon à 2 cylindres. Les cylindres, de 460 mm et 800 mm de diamètre avec une course de 600 mm, sont juxtaposés dans l'axe de la quille,
provenant des ateliers et Chantiers de Bretagne.
Le tube d'étambot en fonte, d'une longeur totale de 2,475 mètres, et l'arbre porte-hélice sont fournis par les Établissement de La Brosse et Fouché de Nantes.
Avec ses 550 chevaux, cette machine, sensiblement plus forte que celle des navires polaires ordinaires doit rendre le bateau plus maniable dans la banquise. Dotée d'une hélice bipale en fer, a un pas de 8'' à gauche, le navire doit pouvoir naviguer à 9 nœuds dans de bonnes conditions météo.

Les cales
Sous le poste d’équipage, se trouve une cale moyenne aux dessus des caisses à eau, d’une contenance de 18 tonnes.
Sous le carré, se trouve La grande cambuse n’a d’autre communication qu’un panneau donnant dans le carré, de sorte qu’aucune vivre ne peut en sortir sans passer sous les yeux de qui que ce soit.
Communiquant directement avec le pont, une grande cale entièrement vaigrée avec une cambuse, assez vaste pour remiser le matériel scientifique, peut contenir un grand réservoir, et peut être aménagé en cale à poisson.
Enfin à l'arri!re se trouve une petite cale.
Les deux soutes à charbon d'approvisionnement, réparties de chaque côté de la chaudière, et une grande soute centrale de réserve devant la chaudière, sous le carré, le tout peuvant contenir 250 tonnes de briquette arrimées ou environ 200 tonnes de charbon en vrac.
En arrière de la machine se trouvent
- une soute garnie de plomb, destinée aux caisses d’essence pour alimenter les équipements fournies par la maison Dion-Boutton : le moteur de 8 chevaux du groupe électrogène et ses accumulateurs, les trois traîneaux automobiles de 4 chevaux conçus par Charcot et offerts par le constructeur, le moteur de 8 chevaux pour la vedette conçue par François Gautier.
- deux soutes à voiles

Aménagement et équipement
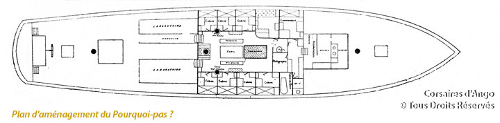
Sur le pont
Sur le pont avant, sous un roof se trouvent la cuisine et l’office et un passage qui s'ouvre sur tribord sur un escalier utilisé par mauvais temps à la mer qui donne sur le pont de la dunete, à bâbord par une porte facile à condamner donnant sur le pont avant.
Les logement de l'état-major communique avec l'extérieur soit par ce roof avant, soit par l'arrrière éclairé par une grande claire-voie et un hublot dans chaque cabine
Jean-Baptiste Charcot fait disposer dans la cuisine un grand réservoir en communication avec le fourneau de la cuisine. Ainsi, pour se procurer de l’eau douce, on peut jeter, dans ce grand bain-marie d’une contenance de 250 litres, des morceaux de glaces par un trou percé dans le toit du roof, au fur à mesure de la consommation. Tant que la chaudière est allumée, un serpentin en communication avec la cuisine permet de plus, de faire fondre rapidement la glace pour l’alimentation des caisses à eau et de la chaudière elle-même.
Pour éviter qu’ils ne gèlent, les accumulateurs du groupe électrogène sont placés contre la paroi de l’office chauffée par la cuisine.
À l’avant de la dunette, s’élève une grande timonerie avec couchette, abritant une des deux roues du gouvernail, la table à cartes et les instruments usuels de navigation.
Contre la timonerie, une plaque de cuivre et argent représentant le Pourquoi-pas ? dans les mers glacées et sur laquelle figurent les mots « Honneur et Patrie » est fixée en dessous de la passerelle.
Cette plaque fut offerte à Jean-Baptiste Charcot par le Père missionnaire, Monseigneur de Guébrian, en remerciement de son intervention auprès du ministre de la Marine, Édouard Lockroy, pour l'envoi d'une canonnière arrivée à temps pour secourir la mission française de son disctinct, sur le haut Yng-Tsé, menacée d’extermination au moment de la révolte des Boxers en Chine.
Près de la timonerie, sur le pont à bâbord, est fixé un petit canon offert par l’inventeur Turpin avec lequel il réalisa des essais sur la mélinite en 1887.
En haut du grand mât, se trouve une marque distinctive de tout bateau polaire, le tonneau classique et indispensable pour la navigation dans les glaces, connu sous le nom de « nid de corbeau ». On y parvient par une échelle de corde, partant des barres de perroquets. Généralement la voix est suffisante pour envoyer les ordres sur le pont, mais par excès de précaution, on installe un téléphone haut-parleur Le Las, offert par son inventeur, qui relie la vigie à la dunette.
Les logements et aménagements réservés aux études scientifiques et recherches
À l’intérieur de sa coque renforcée, le navire dispose d’aménagements spacieux et confortables.
À la différence du Français, où les hommes se plaignaient du manque d'espace, le Pourquoi-pas ? dispose d’une hauteur sous barrot de 2 mètres dans tous les logements de l’équipage et de l’état-major. L’éclairage est partout à profusion grâce à un groupe électrogène, installation jusqu’alors inusité dans les expéditions polaires ; et Charcot fait placer dans chaque cabine des petites lampes à pétrole à faible consommation.
Par contre, comme dans le Français, tous les logements ainsi que la cuisine et les laboratoires sont entièrement doublés sous le vaigrage d’une lame de feutre de 2 cm. Ce feutrage est indispensable pour prévenir la formation des glaces sur les parois intérieures, qui sans cette précaution serait inévitable quelle que soit l’épaisseur des parois. Pour la même raison, tous les morceaux de métal en communication avec l’extérieur sont recouverts d’une peinture au liège.
À l’avant sous le pont, se trouve un vaste poste d’équipage pour 22 hommes : neuf cabines à 2 couchettes, des caissons, tables, etc. Le poste communique avec un petit carré pour les sous-officiers, lequel s’ouvre sur 3 cabines. Deux cabines individuelles pour le patron et le chef mécanicien et une cabine à deux lits pour le quartier-maître et le second mécanicien. Les poulaines de l’équipage se trouve sur l’avant du pont.
Les aménagement comprennent également une salle de douche avec eau chaude à volonté provenant de la chaudière.
Sous la dunette très vaste se trouvent le carré central et les logements de l’état-major éclairés par une grande claire-voie et un hublot dans chaque cabine. Cette disposition permet à tous les appartements d’être chauffés par un poêle à charbon unique installé dans le carré, et qui, allumé, donne une température de 12°C à 14°C.

Charcot fournit à chaque membre de l’état-major l’ameublement de leur cabine, dont les pièces principales consistent en un lit-commode, un bureau et une toilette que chacun peut disposer à sa guise, étant libre également de faire toutes les armoires et étagères qu’il juge nécessaire.
Le carré central très vaste s’ouvre sur 9 cabines. Six cabines de 2 m2 et trois autres un peu plus grandes : celle de tribord est occupée par l’officier en second ; celle de bâbord, donnant sur la coursive avant, est occupée par Jean -Baptiste Charcot. Sa cabine communique avec une autre cabine qui, lorsqu’elle n’est pas occupée, sert à la fois de laboratoire de bactériologie, d’infirmerie et de débarras et donne sur la coursive avant, sur laquelle ouvrent également une chambre noire servant de laboratoire de photographie avec une grande glacière, une salle de bain et les water-closets.
Les sanitaires sont éclairés et aérés par un hublot percé dans la paroi antérieures de la dunette, qui même à la mer, peut rester presque constamment ouvert.
Partout où cela est possible, Jean-Baptiste Charcot fait disposer dans le carré et dans les coursives des armoires et des caissons. En plus de deux bibliothèques montées dans le carré, une étagère courre autour de tous les logements. L'ensemble permet de loger près de 2 000 volumes.

Un soin minutieux est apporté aux laboratoires et à l’outillage scientifique (appareils de sondage et de chalutage, instruments météorologiques et magnétiques) :
Sur le pont à l’avant, un grand treuil-guideau à vapeur , fourni par la maison Libaudière et Mafra de Nantes, avecmât de charge servant à la fois aux manœuvres des chaînes d’ancres et des amarres, aux dragages et aux diverses pêches.
Sur l’avant tribord, se trouve la bobine d’enroulement à vapeur du câble en fil d’acier de la drague, portant à 5 000 mètres de fune de 10 milimètres pour draguages et pour filets verticale.
Le carré et les logements communiquent avec le pont arrière, par deux petits escaliers de quatre marches qui donnent sur :
- à tribord arrière, le laboratoire principal éclairé par des fenêtres avec une table fixe et table à roulis (zoologie, études biologiques). Comme annexes, sur le pont et abrité par un auvent, un laboratoire avec grande table de dissection et armoire. Un grand laboratoire sous le pont communique avec le laboratoire principal.
- bâbord arrière, une coursive donnant sur le pont arrière où s’ouvre àun laboratoire éclairé par des fenêtres (sciences physiques, d’hydrographie).
Ces laboratoires sont construits comme des roofs.
À l'arrière bâbord se trouvent :
- Un treuil à vapeur avec bobine portant 500 mètres de fune de 15 mimimètres pour petits draguages et chalutage
- Une machine à sonder Lucas pour embarcations jusqu'à 500 mètres
- Deux machines à sonder Lucas, actionné au début par une dynamo qui sera avantageusement remplacée par la suite par une petite machine à vapeur avec moteur à grande vitesse pour sondage et opérations océanographiques jusqu'à 10 000 mètres.Un cabestan
À l'arrière tribord se trouvent :
- Un treuil à bras pour opérations océnographiques jusqu'à 500 mètres
- Une installation pour chalut à perche, et chalut à plateau
Sur le gaillard arrière se trouve une machine à sonder Thomson et Warluzel
Sur le pont à l’extrémité arrière se trouvent, une grande tortue qui permet de remiser et d'installer du matériel varié (en particulier les appareils d'océanographie), et un abri avec anémomètre enregistreur.

Les embarcations
Les embarcations sont nombreuses, toutes à franc bord pour éviter que les clins ne soient arrachés par la glace :
- un grand canot grée comme les sardineirs ,
- un fort youyou,
- une solide baleinière comme en emportent les phoquiers norvégiens,
- Une balainière à deux voiles avec dérive
- deux petites norvégiennes connues sous le nom de « prams »,
- quatre doris,
- trois « berthons »,
- une petite embarcation pliante système Williamson,
- une solide vedette à moteur, construite par le père Gautier spécialement adaptée à la navigation dans les glaces, avec un avant arrondi renforcé par une armature en fer. Cette embarcation à moteur Dion-Boutton de 6,50 m de longueur et de 1,60 m de largeur, gréée d’une voile au tiers et d’un foc, peut naviguer à plus de 7 nœuds. Prévue pour être armée 5 hommes pouvant s’abriter, le cas échéant, sous une teugue de voile durant les heures de repos. La vedette s’avère suffisamment spacieuse et stable pour embarquer 20 personnes.

Lancement
Huit mois après sa mise en chantier, le lancement du Pourquoi-pas ? a lieu en grande pompe.
Le président de la Chambre des députés Paul Doumer est le parrain, et Meg Charcot est la marraine du Pourquoi-pas ?.
Le départ fixé au mois d’août laisse le temps de terminer l’aménagement et la préparation du bateau.
Ainsi, le 18 mai 1908, le navire se rend dans le bassin de Saint-Malo, sans son gréement dont le poids de la mâture rend la manœuvre trop délicate.

La robustesse de sa construction, le soin qui y a été apporté, ses formes puissantes et élégantes à la fois font l’admiration de tous les connaisseurs.
Baptisé d’un nom cher au cœur de Charcot, Meg lance sur le navire la traditionnelle bouteille de champagne Mumm.
Du premier coup, la bouteille se brise sur l’étrave du Pourquoi-pas ?.

Le lendemain, le mardi 19 mai 1908, on embarque la chaudière. Quelques semaines après le lancement, la machine est montée et le gréement terminé. La machine, montée avec le même soin et la même solidité que la coque, est munie de pièces de rechange nécessaires et d’un outillage complet, permettant d’exécuter par les moyens du bord, toutes les réparations qui pourraient être utiles.
En juin et juillet 1908, les chantiers Gautier poursuivent les aménagements.
Le 20 juillet, le Pourquoi-pas ? et son équipage reçoivent la bénédiction de Monseigneur Riou, évêque de Rennes.
Les 25 et 26 juillet 1908 ont lieu des essais de vitesse avec les appareils évaporatoires, Le Pourquoi-pas ? quitte Saint-Malo et arrive au Havre le 28 juillet pour finaliser les préparatifs avant son prochain départ.


